É muito comum instalações de gás incorretas e inseguras. Mangueiras e reguladores com validade vencida, abraçadeiras enferrujadas, mangueira plástica passando por trás do fogão, são apenas algumas das falhas que aparecem.
Muitas pessoas dizem que “morrem de medo de gás”, mas a utilização de equipamentos movidos com esse combustível é bastante segura, tomando-se as devidas precauções.
Reguladores de gás: popularmente chamados de “registros”, são na verdade responsáveis pelo controle de pressão do gás que sai do cilindro ou botijão, tornado-o adequado ao uso a que se destina. A pressão que sai do botijão é muito maior do que a necessária ao uso, por exemplo, de um fogão.
O regulador é composto basicamente por um diafragma de borracha nitrílica e uma mola, regulado pelo fabricante com pressão de saída 0,28kgf/cm2, ou 2,8 KPA. O fator mais importante é o prazo de validade do regulador, que é de 5 anos, a partir da fabricação, e deve ser substituído quando vencido.
O Regulador novo deve conter a data de fabricação ou validade, e o selo do INMETRO. O prazo de validade deve estar por extenso ou da forma apresentada na figura:
O número no centro do círculo indica o ano de fabricação, no exemplo 2008. As doze casas em volta do círculo indicam o mês de fabricação, no exemplo, temos 2 casas, indicando o mês de fevereiro. Portanto, este regulador terá sua validade vencida em fevereiro de 2013.
Muitas vezes somos questionados sobre o porque de ser necessária a troca logo quando o regulador vence. Como já dissemos, o elemento principal deste componente é o diafragma, e vimos que ele é constituído por borracha nitrílica.
Esta borracha, além de estar constantemente submetida a pressão, sofre ressecamento e desgaste. O defeito mais comum é o rompimento do diafragma, ocasionando um aumento muito grande de pressão, destruindo ou rompendo os registros das bocas dos fogões ou aquecedores, permitindo a passagem do gás mesmo quando desligados.
Embora talvez você nunca tenha ouvido falar neste tipo de defeito, ele é muito mais comum do que parece, e ocasiona danos no equipamento e no imóvel.
Mangueiras para gás: este é outro item de segurança em que a negligência é bastante comum. Encontramos mangueiras vencidas há anos, as vezes há décadas! Encontramos até mangueiras azues, já retiradas há muito de circulação.
É também muito comum o usuário do equipamento fazer ele mesmo a instalação, e então procura uma loja, muitas vezes não especializada, que lhe vende mangueiras sem normatização.
Mangueiras “multi-uso”, de jardim, ou para ar comprimido são muitas vezes usadas para instalações caseiras, não oferecendo nenhuma segurança aos usuários. As mangueiras para gás GLP ou GN devem ser padronizadas, conter em seu corpo as especificações de uso, data de validade e selo do INMETRO.
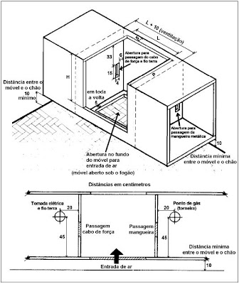
As mangueiras plásticas seguem a mesma regra, e jamais podem ultrapassar 80 cm de comprimento. As mangueiras plásticas destinam-se unicamente a instalação de fogão doméstico não embutido, ligando-se do regulador ao fogão sem passar por traz dele, nem por furos na parede, nem dentro de armários.
Para fogões embutidos deve-se sempre utilizar mangueira metálica flexível, e em caso de ter que atravessar uma parede, deve-se usar um passador normatizado. Nunca passe uma mangueira, seja de que tipo for, por um furo em parede.
Uma dúvida muito comum de clientes é a seguinte: “O técnico me ofereceu uma mangueira metálica com um custo elevado, e eu vi em uma loja uma parecida por menos da metade do preço!” Isso se deve ao fato de que alguns fabricantes inescrupulosos fornecem uma mangueira plástica “multi-uso” revestida com o trançado metálico, sem segurança alguma.
É fácil identificar estas mangueiras, basta olhar seu corpo contra a luz, e verá que entre o trançado metálico é possível enxergar a luz do outro lado. Uma mangueira normatizada constitui-se de 3 camadas, a primeira em borracha nitrílica, a segunda de um trançado anti-chama, e a terceira do trançado metálico, aumentando consideravelmente a resistência física e a temperatura da mangueira.


Veja também outros assuntos relacionados:
A instalação de gás de sua casa é segura?
Fogão conectado à internet, lava-louças com sensor de sujeira e mais novidades
Desvende os segredos dos fogões e fornos e saiba qual a melhor opção
Como acender o forno com válvula de segurança do forno?
Quais são os 25 Mitos e Verdades sobre Eletrodomésticos
Algumas dicas para montar sua cozinha masculina
A cozinha ganha uma mesa com fogão embutido
Conheça as diferenças entre placas vitrocerâmica e indução
Como funciona a válvula de segurança de fogões
Saiba como instalar seu fogão de piso
Um pouco sobre a história do fogão
Professor ensina a fazer um forno solar que custa R$ 15,00


Boa tarde! Na minha casa o gás é de botijão e atualmente fica entre o fogão e a maquina de lavar. Gostaria de deixar o botijão embaixo do tanque e mais distante do fogão mas para isso eu precisaria passar a mangueira por detrás da maquina de lavar. Quero saber se isso é contra indicado, eu iria utilizar uma mangueira metálica flexivel de aproximadamente 1,20mts
Ola. Eu posso passar a mangueira cromada por baixo do piso no lado de fora da casa?
Olá Monica,
O passador deve ser utilizado em qualquer instalação quando é necessário atravessar uma parede.
A mangueira metálica deve ser utilizada em todos os fogões de embutir e em fogões convertidos para gás Natural.
O especialista é chamado de gasista, mecânico gasista ou encanador gasista. Procure na lista de telefones e indicações de profissionais em locais que vendem tubulações de gás.
Abraços.
olá, tenho muitas dúvidas com respeito a segurança da mangueira de fogão, agora percebi que realmente preciso de uma avaliação na minha instalação. O passador só pode ser utilizado para fogão de embutir? a mangueira metálica pode ser usada para fogão de piso? e principalmente, como identifico um especialista em minha cidade? que tipo de profissional seria, onde encontra-lo?
Obrigada.